











How do you design a contemporary monastery? This question, proposed to our studio, provided the directive for my examination of traditional monasteries and their programmatic reasoning. My design re-evaluates the role of the cloister in a new monastery. Classically, the cloister provides primary circulation to all other programs; however, its rectilinear form restricts the potential of such an important daily path. In order to exhibit the almost continuous movement of the monks, I looked to Architecture Principe’s (Claude Parent and Paul Virilio) work with fracturing and the architect/monk Hans Van der Laan’s research on proportioning and repetition. By fracturing the traditional cloister / program relationship, a new labyrinthine cloister emerges in which every space can be reached by several means.
With this framework in mind, I studied the beautiful, desolate site in the Bardenas Reales desert of northern Spain. Three principal features of the site struck me as resonating symbolically with the programmatic requirements of the monastery: desert, pond, and mountain. Firstly, the desert, a scene familiar to the monastery, represents the tribulations, solitude, and silent beauty of the devout monk’s life. Accordingly, the monk’s cells extend out into the desert in a gesture to that tradition. Secondly, the quiet pond located on the site reflects in its tranquility both heaven and earth, similarly to the church. The church hovers just above the water’s edge as the most sacred space. Thirdly, in order to maintain itself, the contemporary monastery allows visitors to stay in a hostel. These visitors are drawn to the monastery in search of something. Looking to elevate their minds, or perhaps experience a “eureka” moment, the visitors’ struggle is reminiscent of climbing a mountain. Correspondingly, the visitor’s hostel rises as a slender tower next to the mountain to the North of the site. This tower, in a way, replaces the traditional campanile. Together, the cells, church, and hostel are swept into the calm dynamic of the cloister.
Cornell University - AAP
Master of Architecture Program
Spring 2015
Studio Professors: Francisco Mangado, Suzanne Lettieri








































Cornell University - AAP
Master of Architecture Program
Fall 2013
Studio Professors: Jenny Sabin, Andrew Lucia
Jenny Sabin
Andrew Lucia LUCITO












































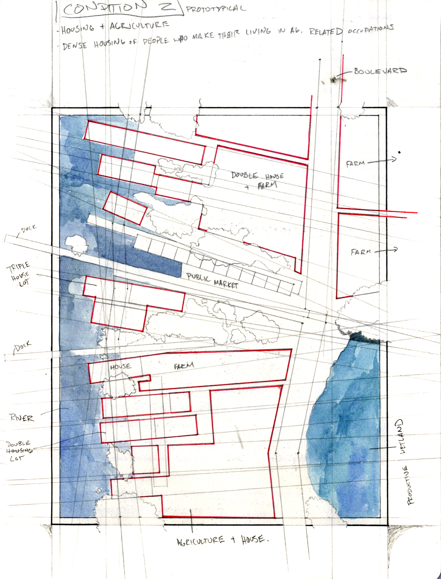
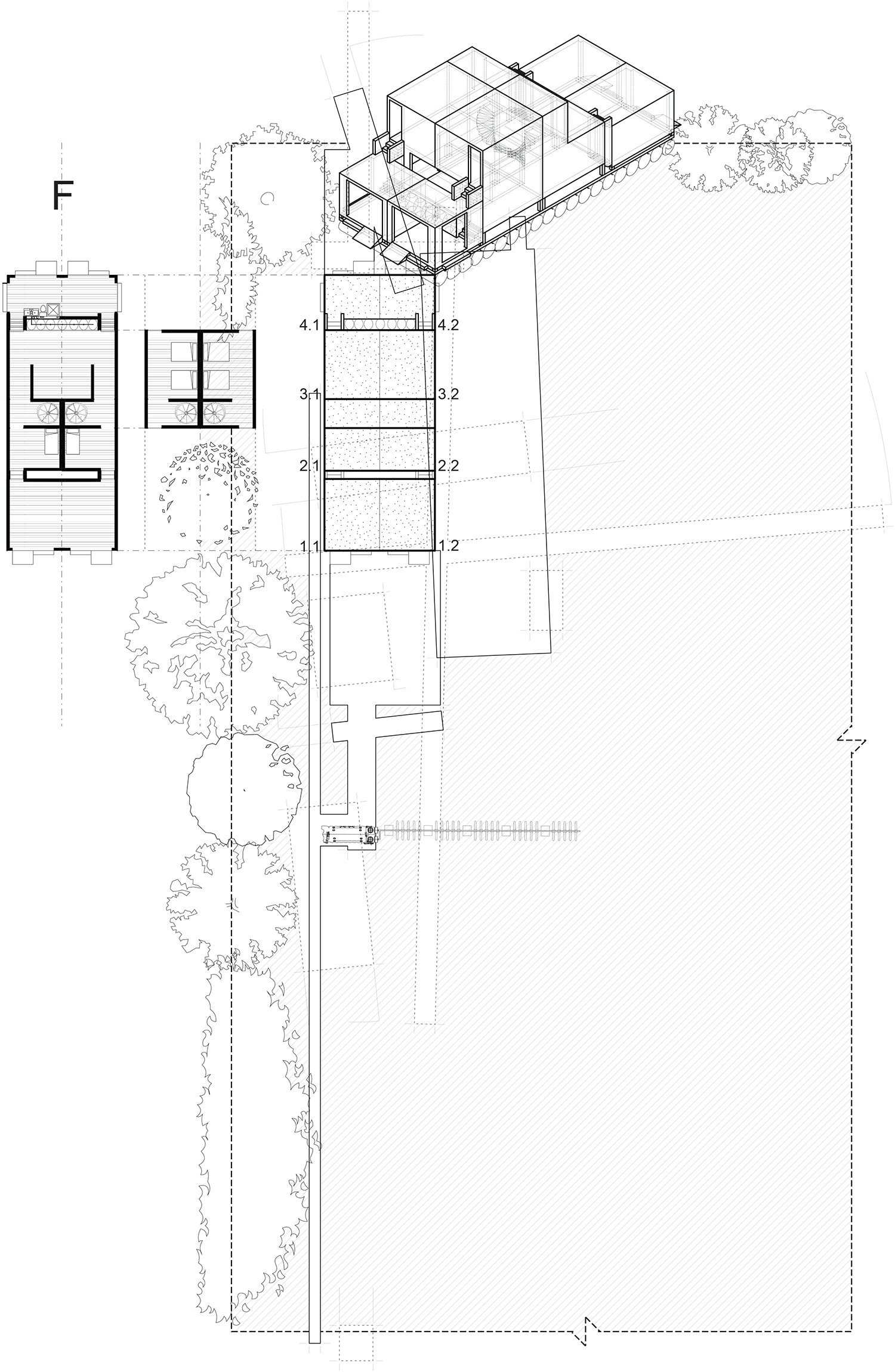
Cornell University - AAP
Master of Architecture Program
Fall 2014
Studio Professors: Lily Chi, Jeremy Foster
Project Partners: Apexa Patel, Yongxiao Liu










































Cornell University - AAP NYC
Master of Architecture Program
Spring 2014
Studio Professors: Tim Bade, Jane Stageberg, Martin Cox
Bade Stageberg Cox





















University of Cincinnati - SAID
Bachelor of Science in Architecture Program
Spring 2013
Studio Professor: Ming Tang
Ming3D